限位膨胀节是连接泵、阀门等设备与管道的新产品。它们通过全螺栓连接,使它们成为一个具有一定位移的整体,这样在安装和维护时可以根据现场安装尺寸进行调整,工作时轴向推力可以传递回整个管道。这不仅提高了工作效率,而且对泵、阀门等设备起到了一定的保护作用。
单法兰限位膨胀节的特点:
1.密封原理属于塑性变形。
2.用螺栓连接。
3.螺栓应承受拉伸应力、温度应力、弯矩、扭矩和许多其他外部应力。
4.安装方便,应拆卸。
单法兰极限膨胀节的性能:
1.耐磨性:单法兰极限膨胀节层中Al2O3含量大于95%,显微硬度HV1000-1500,因此具有耐磨性,比淬火中碳钢高十倍以上,优于碳化钨。
2.耐腐蚀单法兰极限膨胀节是一种化学性能稳定、耐腐蚀、耐酸性能优异的中性材料,可耐各种无机酸、有机酸、有机溶剂等。它的耐腐蚀性是不锈钢的十倍以上。

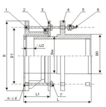
公称通径
| 管子外径
| 长度
| 法兰连接尺寸
| |||||||||
DN | DW | L1 | L | 0.25Mpa | 0.6Mpa | 1.OMpa | ||||||
D | K | n-do | D | K | n-do | D | K | n-do | ||||
65 | 76 | 105 | 118 | 160 | 130 | 4-¢14 | 160 | 130 | 4-¢14 | 185 | 145 | 4-¢18 |
80 | 89 | 190 | 150 | 4-¢18 | 190 | 150 | 4-¢18 | 200 | 160 | 8-¢18 | ||
1OO | 108 | 123 | 210 | 170 | 210 | 170 | 220 | 180 | ||||
114 | ||||||||||||
125 | 133 | 240 | 200 | 8-¢18 | 240 | 200 | 8-¢18 | 250 | 21O | |||
140 | ||||||||||||
150 | 159 | 265 | 225 | 265 | 225 | 285 | 240 | 8-¢23 | ||||
168 | ||||||||||||
200 | 219 | 320 | 280 | 320 | 280 | 340 | 295 | |||||
250 | 273 | 130 | 375 | 335 | 12-¢23 | 375 | 335 | 12-618 | 395 | 350 | 12-¢23 | |
300 | 325 | 130 | 160 | 440 | 395 | 12-¢18 | 440 | 395 | 12-¢22 | 445 | 400 | |
350 | 355 | 490 | 445 | 490 | 445 | 505 | 460 | 16-¢22 | ||||
377 | ||||||||||||
400 | 406 | 540 | 495 | 16-¢23 | 540 | 495 | 16-¢22 | 565 | 515 | 16-¢27 | ||
426 | ||||||||||||
450 | 457 | 595 | 550 | 595 | 550 | 16-¢22 | 615 | 565 | 20-¢26 | |||
480 | ||||||||||||
500 | 508 | 645 | 600 | 20-¢23 | 645 | 600 | 20-¢22 | 670 | 620 | |||
530 | ||||||||||||
600 | 610 | 755 | 705 | 20-¢27 | 755 | 705 | 20-¢26 | 780 | 725 | 20-¢30 | ||
630 | ||||||||||||
700 | 720 | 860 | 810 | 24-¢27 | 860 | 810 | 24-¢26 | 895 | 840 | 24-¢30 | ||
800 | 820 | 220 | 255 | 975 | 920 | 24-¢30 | 975 | 920 | 24-¢30 | 1015 | 950 | 24-¢33 |
900 | 920 | 1075 | 1020 | 1075 | 1020 | 1115 | 1015 | 28-¢33 | ||||
1000 | 1020 | 1175 | 1120 | 28-¢30 | 1175 | 1120 | 28-¢30 | 1230 | 1160 | 28-¢36 | ||
1200 | 1220 | 1375 | 1320 | 32-¢30 | 1405 | 1340 | 32-¢33 | 1455 | 1380 | 32-¢39 | ||
1400 | 1420 | 270 | 1575 | 1520 | 36-¢30 | 1630 | 1560 | 36-¢36 | 1675 | 1590 | 36-¢42 | |
1600 | 1620 | 1790 | 1730 | 40-¢30 | 1830 | 1760 | 40-¢36 | 1915 | 1820 | 40-¢48 | ||
1800 | 1820 | 1990 | 1930 | 44-¢30 | 2045 | 1970 | 44-¢40 | 2115 | 2020 | 44-¢48 | ||
2000 | 2020 | 2190 | 2130 | 48-¢30 | 2265 | 2180 | 48-¢42 | 2325 | 2230 | 48-¢48 | ||
2200 | 2220 | 275 | 2405 | 2340 | 52-¢33 | 2475 | 2390 | 52-¢42 | 2550 | 2440 | 52-¢56 | |
2400 | 2420 | 2605 | 2540 | 56-¢33 | 2685 | 2600 | 56-¢42 | 2760 | 2650 | 56-¢56 | ||
2600 | 2620 | 240 | 300 | 2805 | 2740 | 60-¢33 | 2905 | 2810 | 60-¢48 | 2960 | 2850 | 60-¢56 |
2800 | 2820 | 3030 | 2960 | 64-¢36 | 3115 | 3020 | 64-¢48 | 3180 | 3070 | 64-¢56 | ||
3000 | 3020 | 3230 | 3160 | 68-¢36 | 3315 | 3220 | 68-¢48 | 3405 | 3290 | 68-¢60 | ||
3200 | 3220 | 3430 | 3360 | 72-¢36 | 3525 | 3430 | 72-¢48 | |||||
3400 | 3420 | 3630 | 3560 | 76-¢36 | 3735 | 3640 | 76-¢48 | |||||
3600 | 3620 | 3840 | 3770 | 80-¢36 | 3970 | 3860 | 80-¢56 | |||||
3800 | 3820 | 4045 | 3970 | 80-¢40 | ||||||||
4000 | 4020 | 4245 | 4170 | 84-¢40 | ||||||||
注:本尺寸符合GB/T12465-2010标准 | ||||||||||||













